BIM for Low-Rise Residential Building








แม้จะมีจำนวนชั้นไม่มาก แต่หากไม่มีการวางแผนที่เชื่อมโยงแบบจากทุกฝ่ายเข้าด้วยกันตั้งแต่ต้น ก็มักจะเกิดปัญหาหน้างานซ้ำๆ เช่น แบบสถาปัตย์ทับซ้อนกับระบบไฟฟ้า, จุดขัดแย้งระหว่างโครงสร้างกับท่อ และความล่าช้าเพราะการทำงานของแต่ละฝ่ายไม่สัมพันธ์กัน
ทีมของเราจึงเข้ามาแก้ปัญหาเหล่านี้ด้วยการใช้ BIM แบบบูรณาการ เพื่อให้ทุกฝ่ายเห็นภาพเดียวกันและทำงานร่วมกันได้อย่างไร้รอยต่อ

Scope of Work
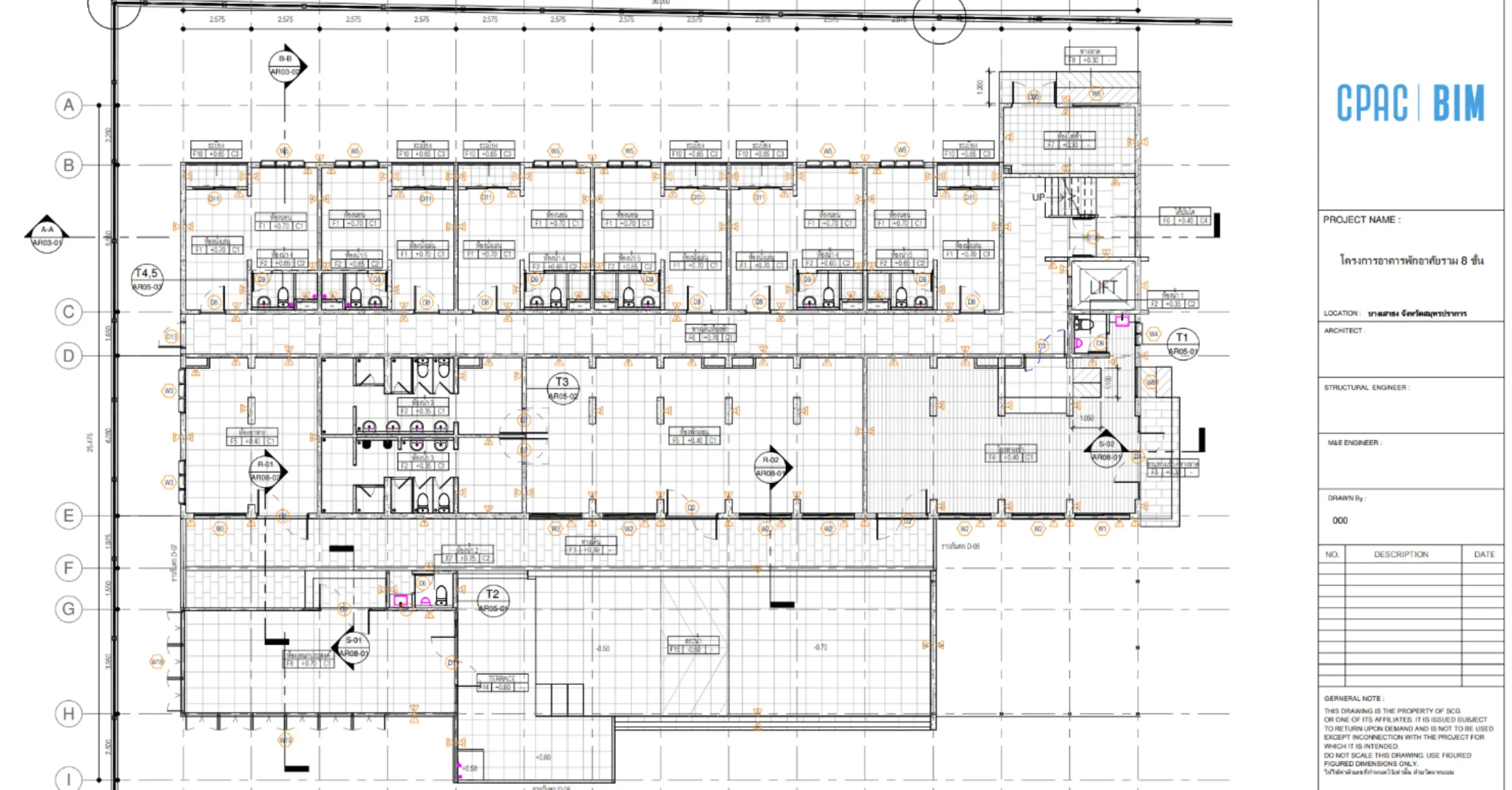
- จัดทำ Combined BIM Model ครอบคลุมทุกระบบ
ทั้งสถาปัตยกรรม, โครงสร้าง, ไฟฟ้า, เครื่องกล, สุขาภิบาล และระบบน้ำ โดยเชื่อมโยงแบบทั้งหมดเข้ากับ Real Coordinate ทำให้ทุกฝ่ายเข้าใจพื้นที่ตรงกัน - รัน Clash Detection ทุกระบบก่อนเริ่มก่อสร้าง
เพื่อตรวจสอบและเคลียร์ข้อขัดแย้ง ลดความเสี่ยงหน้างาน โดยเฉพาะในจุดที่ระบบทับซ้อนกัน - สร้าง Federated Model สำหรับประชุม Site Coordination
ใช้เป็นฐานสำหรับการประชุมประสานงานในแต่ละเฟส พร้อมออก Issue Report อย่างเป็นระบบ

ผลลัพธ์และประโยชน์ที่ได้รับ
การนำ BIM มาใช้ในโครงการที่อยู่อาศัยช่วยลดการสื่อสารผิดพลาดระหว่างทีมออกแบบ วิศวกร และผู้รับเหมาได้อย่างชัดเจน ส่งผลให้ลดต้นทุนจากงาน Rework และการรื้อถอนที่ไม่จำเป็น พร้อมทั้งช่วยควบคุม Timeline ของโครงการได้แม่นยำยิ่งขึ้น
เมื่อสิ้นสุดโครงการยังได้ข้อมูล As-Built ที่สามารถนำไปใช้ต่อในงานซ่อมบำรุงในอนาคตได้จริง เหมาะอย่างยิ่งสำหรับผู้พัฒนาโครงการ, ทีมออกแบบ และผู้รับเหมาที่ต้องการยกระดับมาตรฐานงานที่อยู่อาศัยให้เป็นระบบ และลดความเสี่ยงในการก่อสร้างตั้งแต่เริ่มต้น
Our Projects
ตัวอย่างผลงานจากโครงการจริง ที่สะท้อนการใช้ BIM อย่างมืออาชีพในทุกขั้นตอนของงานก่อสร้าง







